Project by Maroussia Chamorel & Youri Kravtchenko | Construction management by Maroussia Chamorel | Photo by Hamoudi Shubert | Drawings by Josephine Devaud & Melissa Bitto (Head - Geneva) | 2015| In partnership with Group8

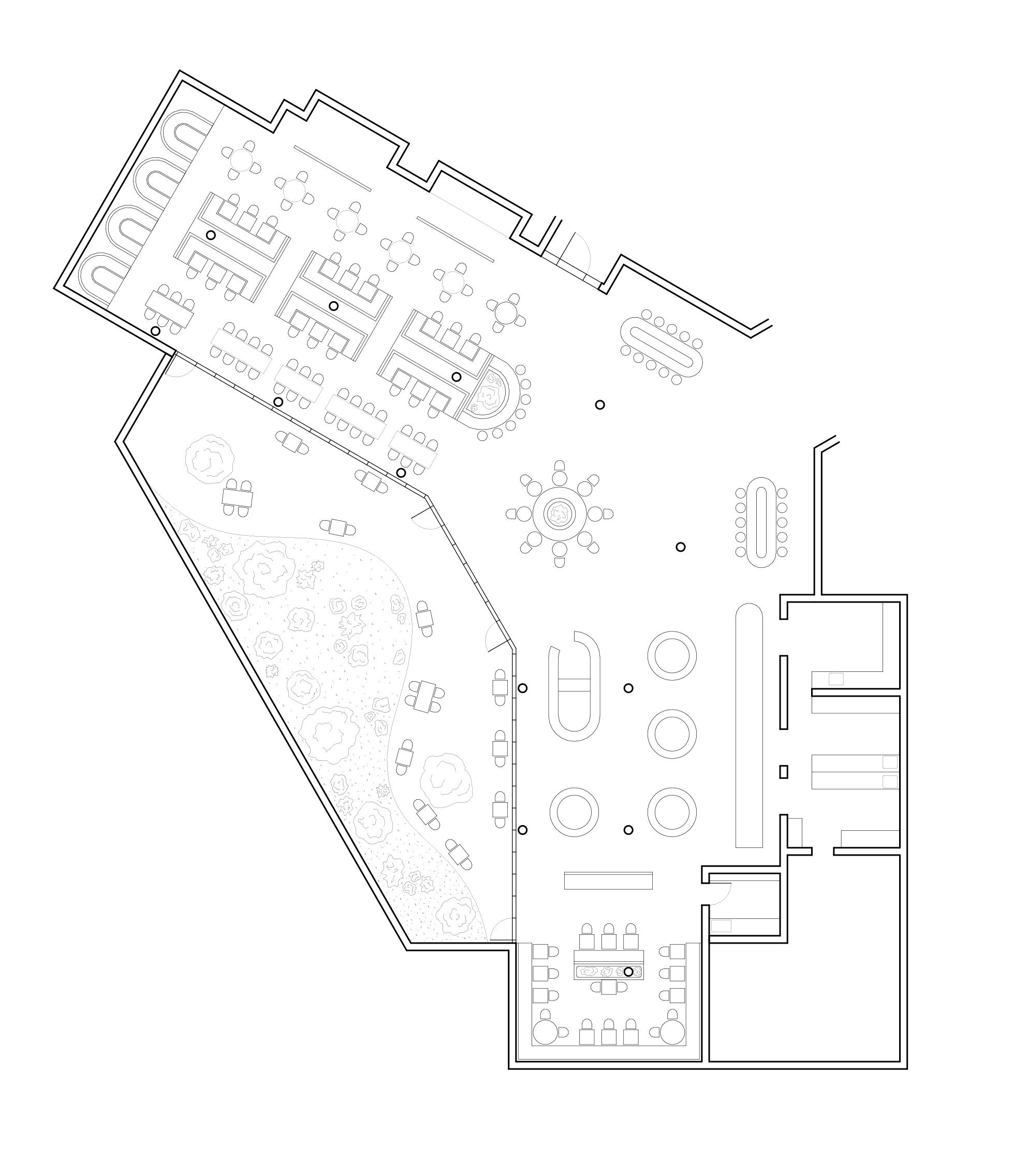
Bird Cafeteria's renovation project is a collaboration with the architecture firm Group8. Our office transformed this space, aiming to imbue functionality and collectivity with a more domestic dimension. Within this expansive area, various zones have been created and organized to allow for different, more or less intimate atmospheres.