Project by Youri Kravtchenko & Antoine Guay | Construction management by Antoine Guay | Photo by Dylan Perrenoud | Drawings by ©HEAD - Geneva | Viola Bissegger | 2015

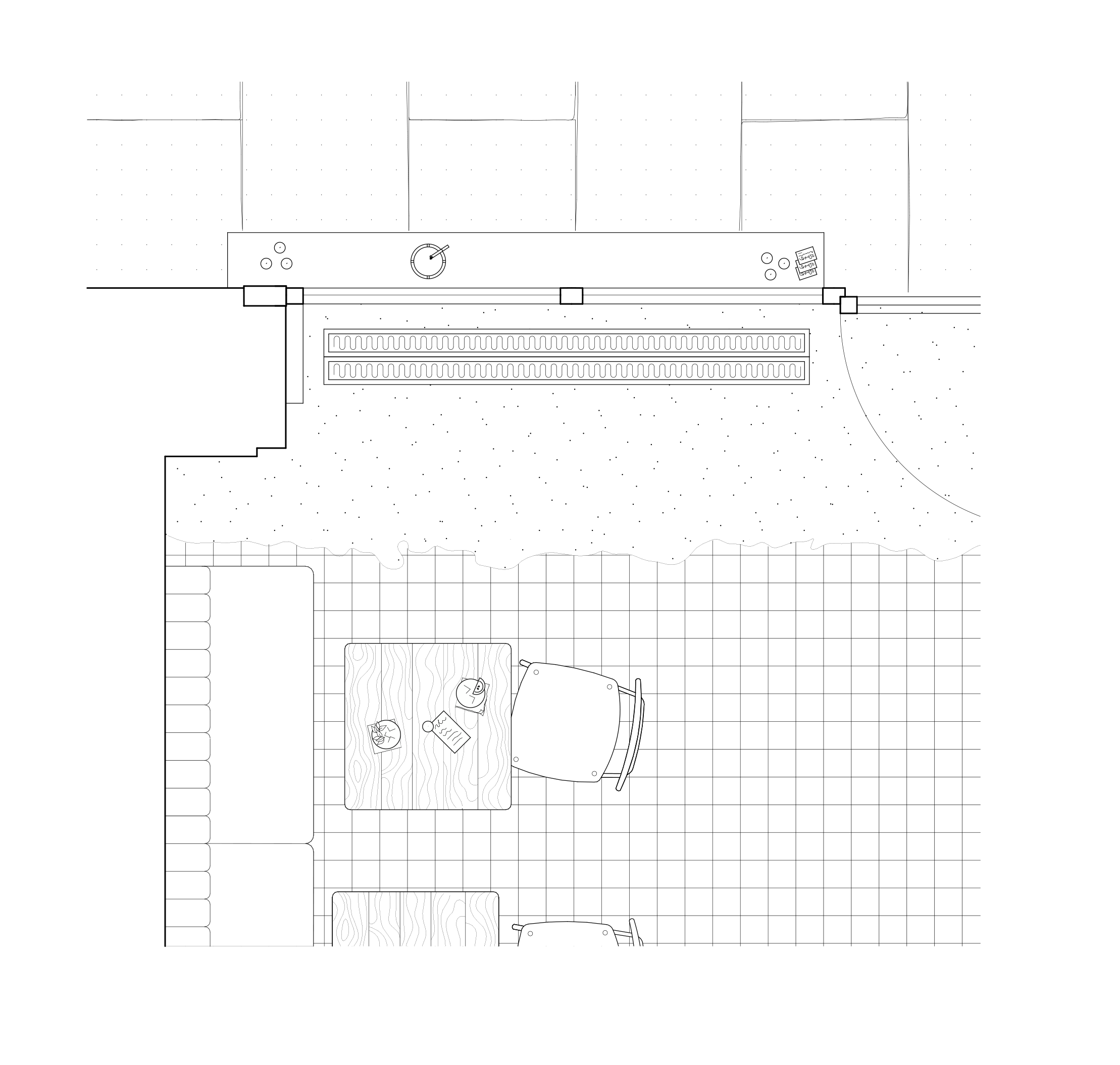
In this second instalment of the Bottle Brothers chain of restaurants and bars, the same concept has been repeated: to strip the space down to a state of near-ruin, while incorporating luxurious elements as if they had been added unexpectedly. Here, the original walls and floors contrast with the bar's bespoke furniture and lighting, made from noble materials such as Calacatta marble and brass.