Projet de Youri Kravtchenko & Raphaël Bonbon | Direction des travaux de Raphaël Bonbon | Photo de Dylan Perrenoud | Dessins de ©HEAD - Genève - Kim Olga | 2022

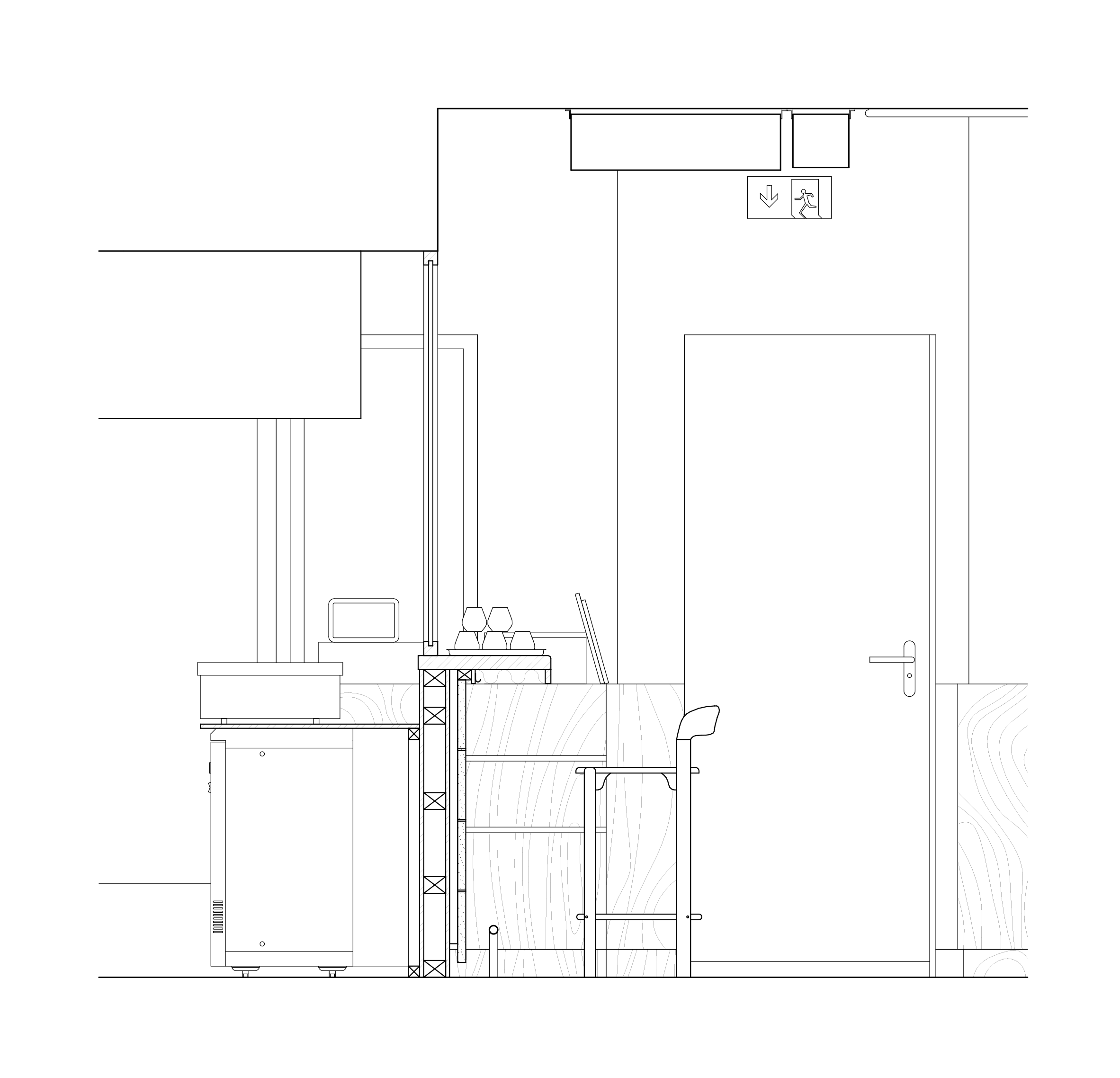
Situé au coeur de Carouge, cette institution devient la Créperie Blé Noir. Une créperie à la croisée des cultures important un monde matérialité bretonne vers la suisse. Un bar-cuisine réalisé en tuile de granit requalifie l'espace tandis que les la dentelle amène une forme de nostalgie.

https://blenoir.ch/