Projet de Youri Kravtchenko & Marion Vergne | Direction des travaux de Marion Vergne | Avec la collaboration de l’artiste Pedro Varias | Photo de Alicia Dubuis | 2024

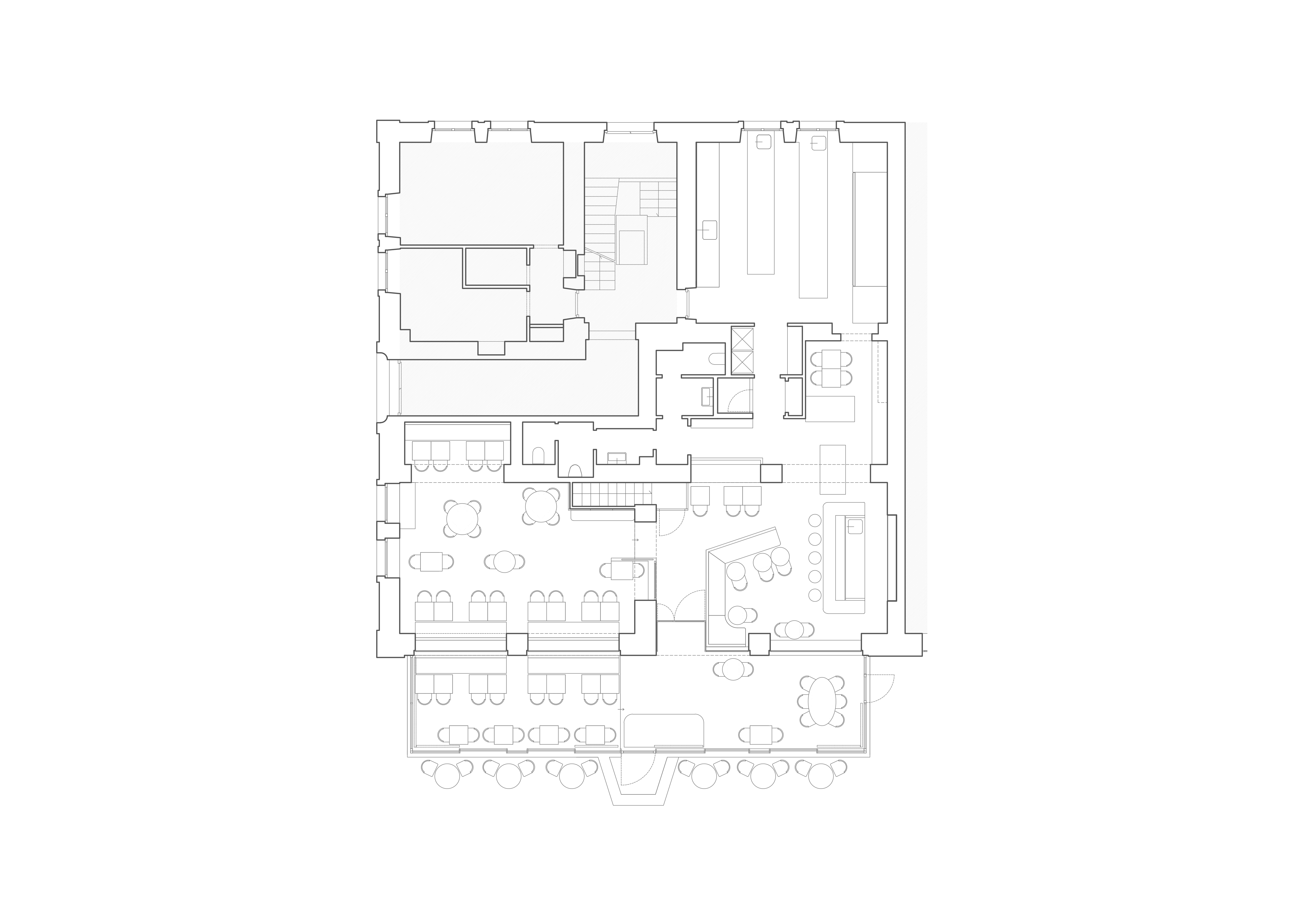
Le Dorian est un restaurant-brasserie emblématique et historique, idéalement situé près du Grand Théâtre de Genève, repris par le chef Florian Le Bouhec. L’histoire du Dorian remonte aux années 1950. Cette brasserie tire son nom de sa première propriétaire, une comédienne de théâtre nommée Mademoiselle Dorian. Un riche amoureux lui avait offert l’immeuble, donnant ainsi naissance à une histoire romanesque où l’art et la musique occupent toujours une place centrale. Il a donc fallu tout changer sans... rien changer.

En évitant de perturber la typologie historique des lieux et en préservant l’essence des murs, corniches, moulures et soubassements, nous avons procédé à des remplacements, ajouts et soustractions, tout en multipliant les objets et motifs. Du côté de la cuisine, nous avons conçu un outil de travail flambant neuf. En salle, la moquette fatiguée et les murs jaunis ont laissé place à des canevas : une moquette noire et un sol blanc pour la véranda, conçus pour accueillir les dessins de l’artiste et tatoueur Pedro Sassi, alias Varias Tatu.

Sur fond noir, des aliments, de la vaisselle et Béchamel, le chien du patron, ont d’abord été dessinés au crayon, puis imprimés sur de la laine vierge. Sur fond blanc, les mêmes dessins ont été réinterprétés par la mosaïste Mathilde Herrero. Sur les murs, l’artiste s’est rapproché du travail du tatoueur, gravant des lignes tantôt fines, tantôt épaisses, en harmonie avec les lignes et le contexte environnants. Enfin, dans un registre grotesque et hétéroclite, le nouveau bar de style rocaille semble presque se refléter dans les lampes en forme de donuts chromés, imaginées par le designer marseillais Axel Chay.