Projet de Maud Abbé-Decarroux & Youri Kravtchenko | Direction de travaux par Maud Abbé-Decarroux | Photo de Juliette Contat | Dessins de Maud Abbé-Decarroux | 2025

« Gy » est un projet de rénovation d’une maison dans le centre protégé du village de Gy. Sa position au bord de la route et les histoires racontées dans la famille de son propriétaire nous amènent à penser qu’il pourrait s’agir de l’ancienne douane – avant la construction de celle dessinée par Marc Camoletti.

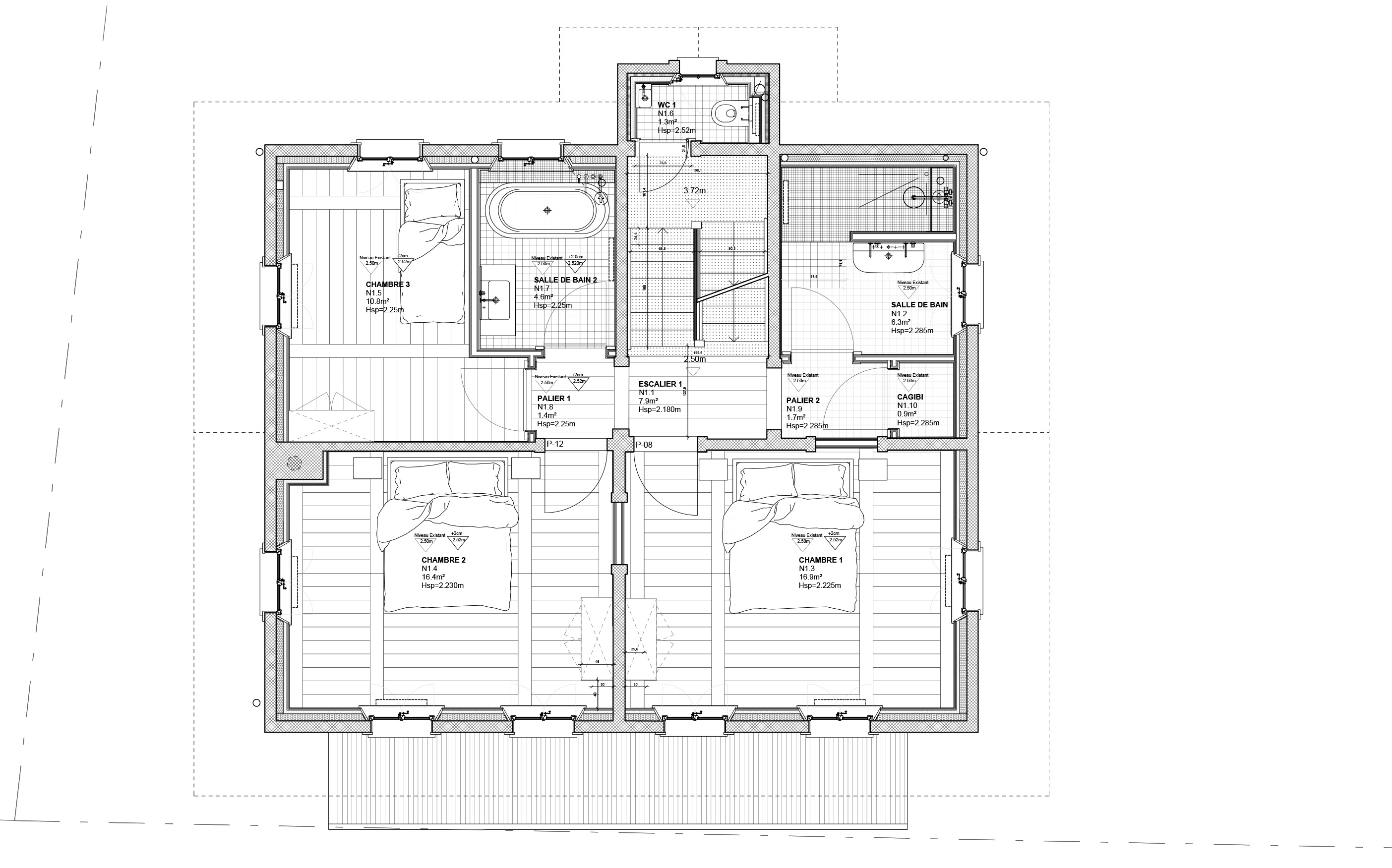
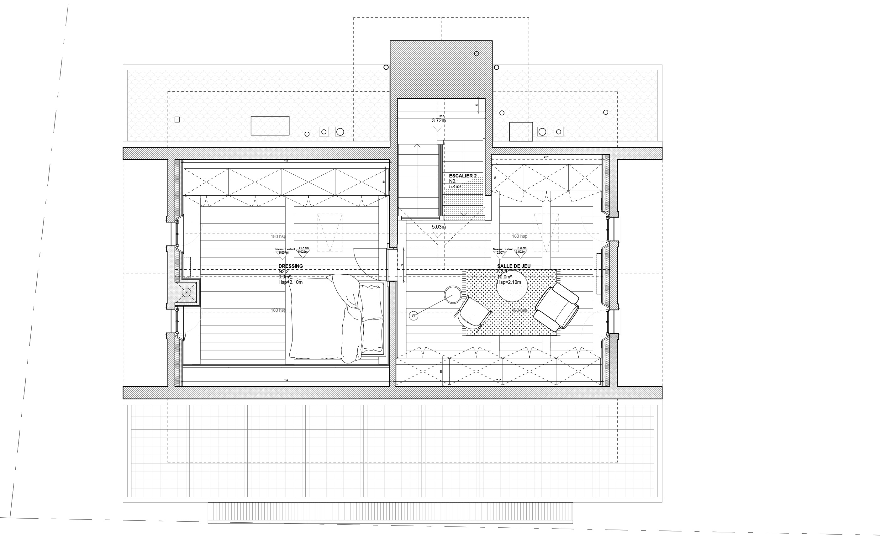
Intouchées depuis des années, la maison et son annexe avait besoin d’un petit coup de jeune ! Les travaux se sont axés sur sa consolidation structurelle, le remplacement complet de sa toiture, la mise en place d’un système de chauffage et sa remise en état -tant intérieure qu’extérieure- avec des matériaux en accord avec l’existant.

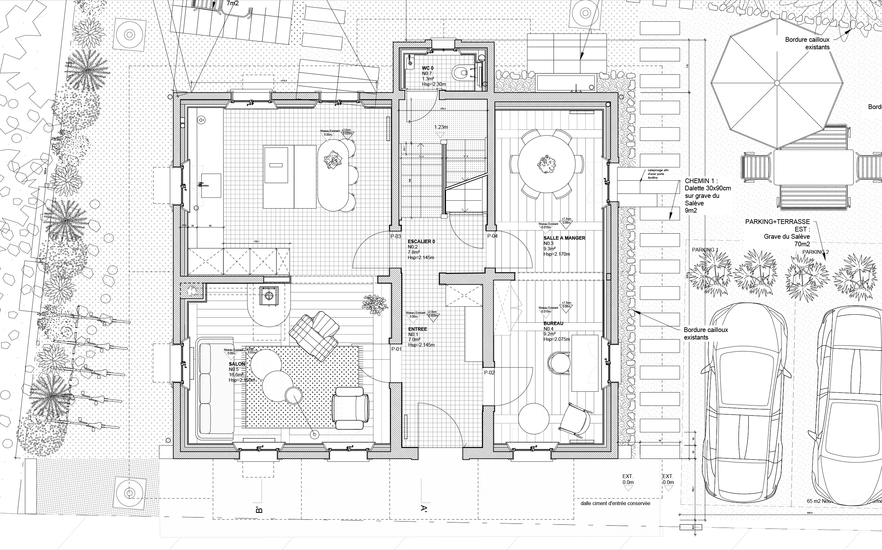
Son grand jardin a également été remis en valeur et des nouvelles ouvertures ont été créées dans la façade arrière de la maison pour affirmer la connexion avec ce dernier.

Un soin a été apporté au choix des matériaux pour respecter le langage du bâti alentours et traditionnel : crépis à la chaux, fenêtres à l’ancienne en chêne, … Les éléments existants ont au maximum été conservés et rénovés ou déplacés comme les portes à l’étage qui ont été réutilisées pour la création des nouvelles salles de bain.

La marquise et le rosier continuerons donc de faire partie du charme de la « petite maison bleu » comme elle est nommée -en référence à sa couleur initiale.

Cependant son confort thermique a complétement été revu. Son système de chauffage se base sur l’utilisation de la géothermie et tout le pan sud de la toiture est utilisé par des panneaux solaires photovoltaïques et thermiques.