Projet de Maud Abbé-Decarroux et Youri Kravtchenko | Direction des travaux de Maud Abbé-Decarroux | Photo de Dylan Perrenoud | Dessins de Maud Abbé-Decarroux | 2023

James Fazy est un projet de rénovation de différents espaces d'un ensemble recensé du XIXe siècle. Il se compose de trois immeubles au boulevard James-Fazy 6-8-10. Axe important, situé proche de la gare, la rénovation des deux surfaces était orientée vers la création d'espaces de travail facilement accessibles.

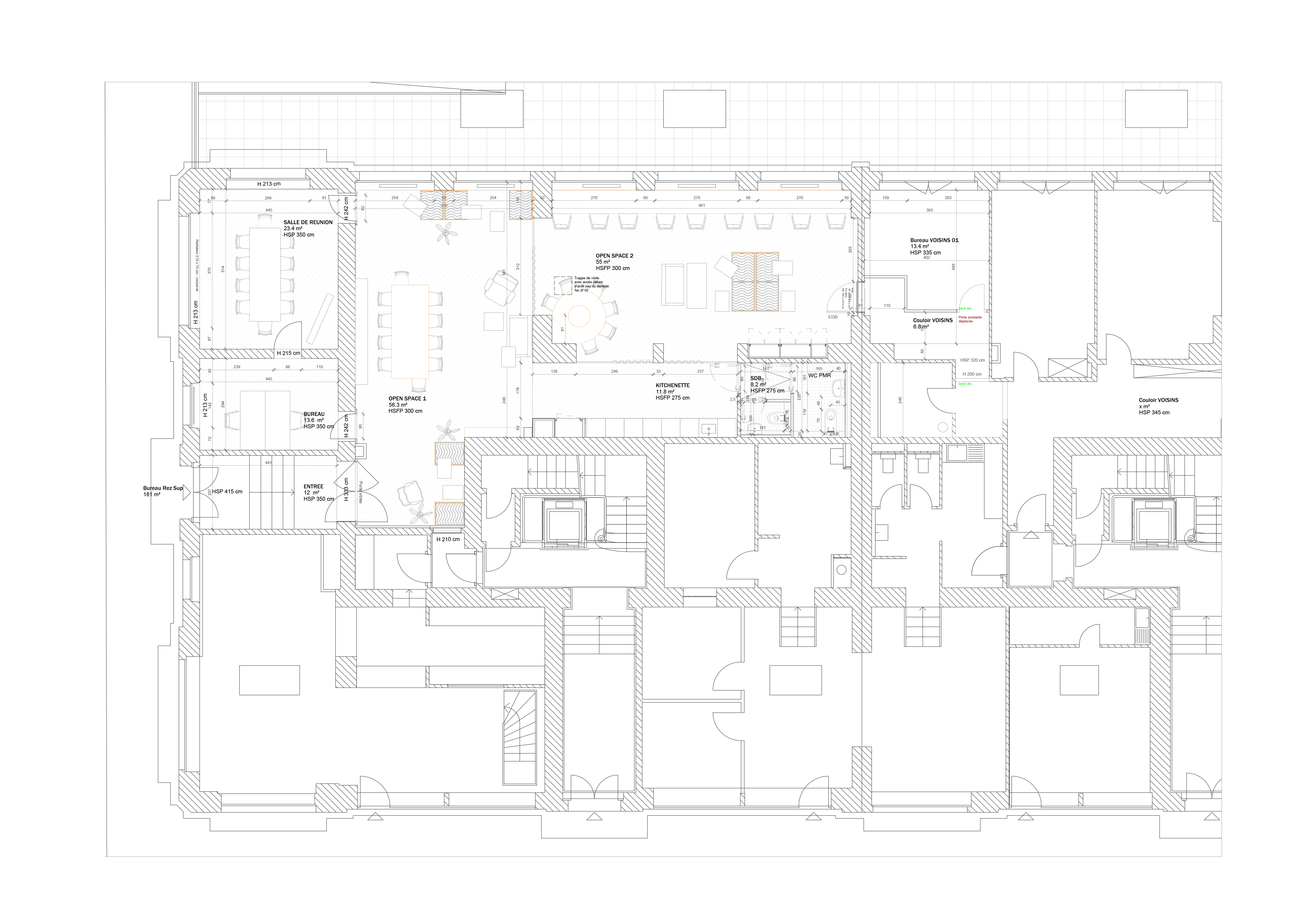
Voisins coworking déjà implanté dans l'immeuble en a profité pour agrandir son offre en reliant les bureaux et café existant à ce nouvel espace. Ce dernier se voulait très flexible en proposant une grande salle de coworking facilement transformable en une grande salle où organiser événement, conférence, réceptions ainsi qu'un bureau et une salle de réunion fermés pour une association pour la réinsertion des 50 et +.

Le mobilier dessiné pour l'occasion s'inspire de la simplicité de conception mais grande fonctionnalité des créations de Lina Bo Bardi pour le SESC Pompéia à São Paulo. Les modules de canapé s'imbriquent parfaitement et composent -au gré des envies- des coins de travail disséminés dans la salle. Ils peuvent également se ranger sous la table "bandeau" située sous les fenêtres afin de libérer complétement l'espace. La table ronde se déploie ou se relève contre le mur, permettant de créer un tableau de présentation avec sa petite table d'appoint. Un coin cuisine propose aux coworkers un moment de détente et fait de l'endroit un lieu convivial où travail et partage cohabitent.

La rénovation a permis de remettre en valeur des éléments originels du bâtiment tels que l'escalier en pierre de taille de l'entrée, les boiseries et plafond moulurés de la salle de réunion et du bureau.

Les trois entrées et cages d'escaliers ont également été rénovées. La mise en valeur des matériaux mis en place à l'origine tel que le travertin et le chêne ont permis de redonner du cachet à ces accès dont les rénovations successives avaient camouflé la valeur historique du lieu. Les portes anciennes en bois ont été rénovées pour répondre aux normes feu d'aujourd'hui tout en conservant leurs aspects. Les moulures découvertes sous les faux plafonds ont également été remises en évidences.