Projet de Youri Kravtchenko & Chloé Birrer | Direction de la construction de Chloé Birrer | Photo de Hamoudi Schubber | Dessins de Joséphine Devaud | 2017

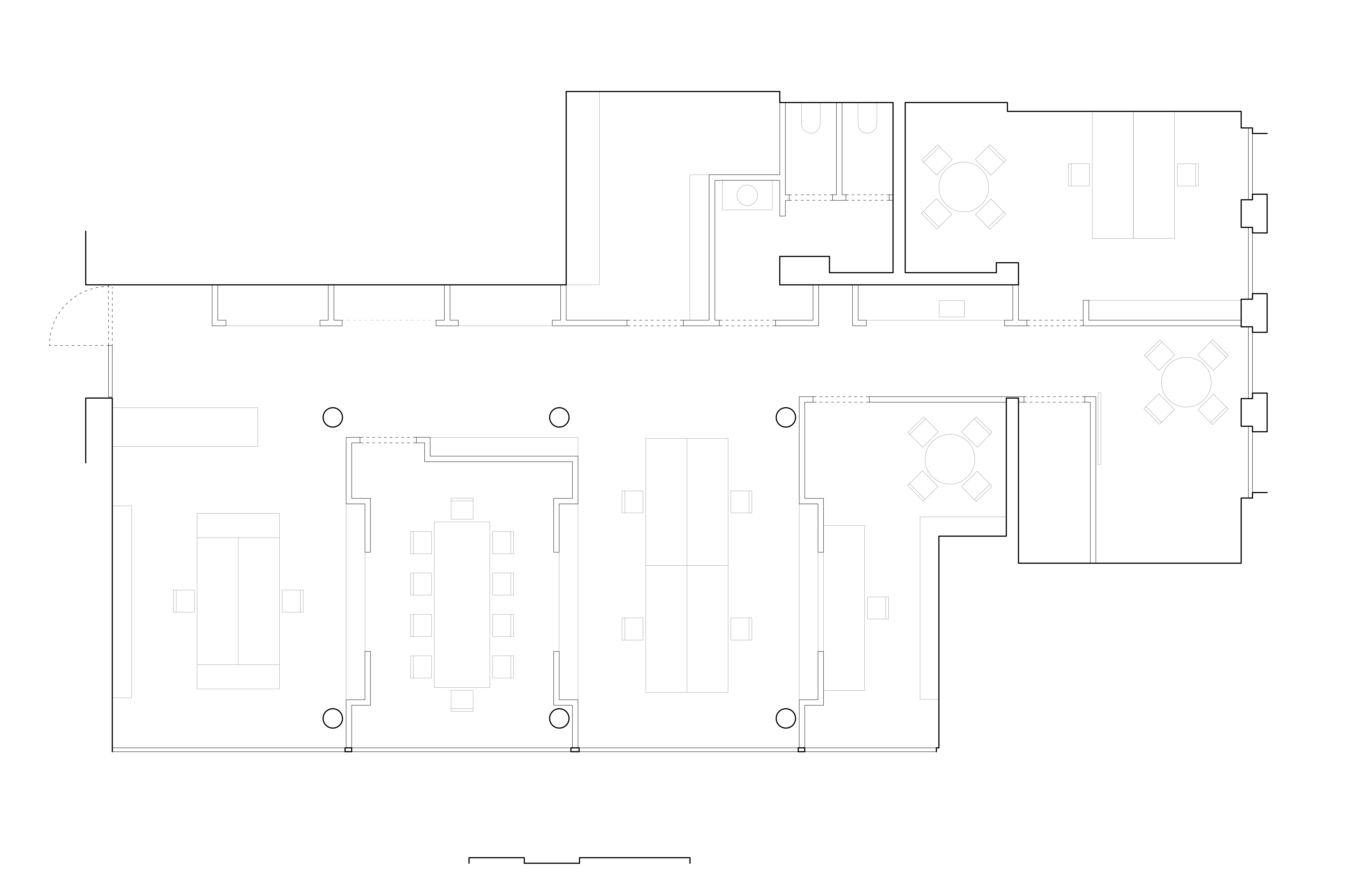
Une fiduciaire a demandé une construction complète et l’aménagement de locaux de bureaux dans un immeuble récent du centre-ville de Genève. En utilisant seulement trois «modestes» mais acoustiquement performant (UniAkukstik, Linoleum et CP bouleau) et un plan simple poussant les perspectives plus loin que le regard ne peut, nous avons réalisé un espace généreux et élégant et pourtant bon marché.