Projet de Youri Kravtchenko et Marion Vergne | Direction des travaux de Marion Vergne | Photo de Dylan Perrenoud | Dessins de ©HEAD - Genève - Carolina Rodrigues | 2022

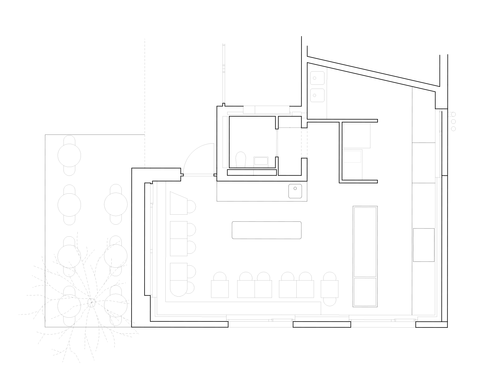
Nero’s reprend les codes des Trattorias italiennes, pour créer de nouveaux espaces au sein desquels s’allient matériaux traditionnels et design contemporain. Les éléments classiques italiens se multiplient et se renforcent, nourrissant une atmosphère aux rituels conservés, et au voyage constant.