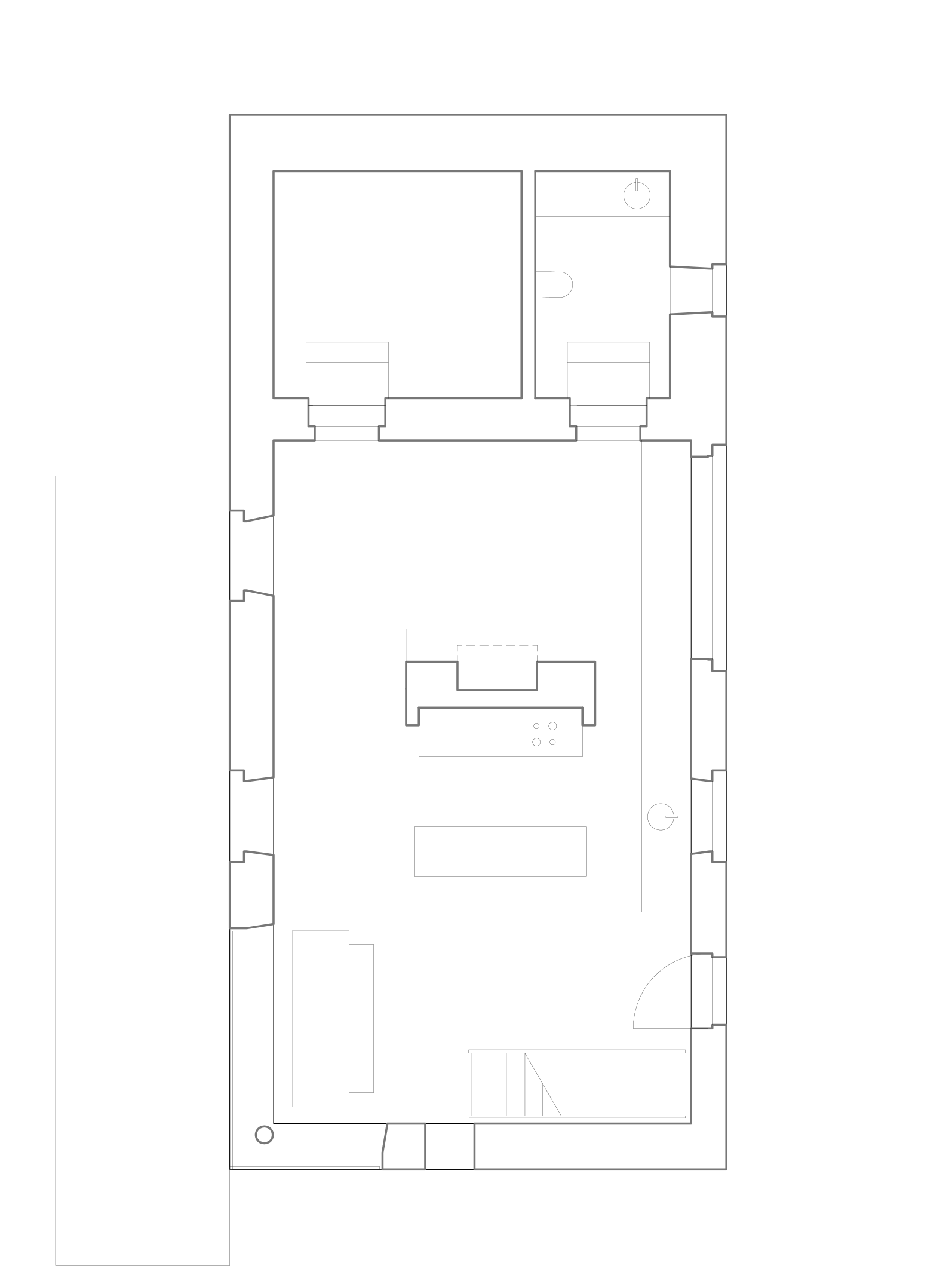
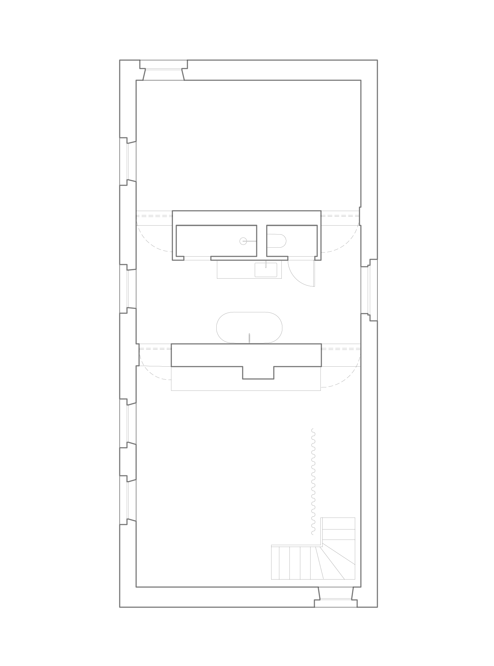
Projet de Joséphine Devaud & Youri Kravtchenko | Photo de Dylan Perrenoud | Dessins de Joséphine Devaud | 2021

Presque sans effort et sans intervention, cette transformation d'une ferme en pleine nature se niche entre un état de ruine constaté et l'utopie d'un bâtiment dont on pourrait dire un jour qu'il est « fini ». A l'opposé d'une forme de finitude, le projet emprunte à l'art floral japonais - l'ikebana - dont la structure complète de l'arrangement floral japonais est centrée sur trois points principaux symbolisant le ciel, la terre et l'humanité à travers les trois piliers, l'asymétrie, l'espace et la profondeur. Certaines interventions dans un état laissé « en l'état » permettent ainsi de libérer la poésie des choses et des objets. Une fenêtre dans la vue, le béton de la cuisine, une cheminée, une arche redécouverte, deux murs en bois.