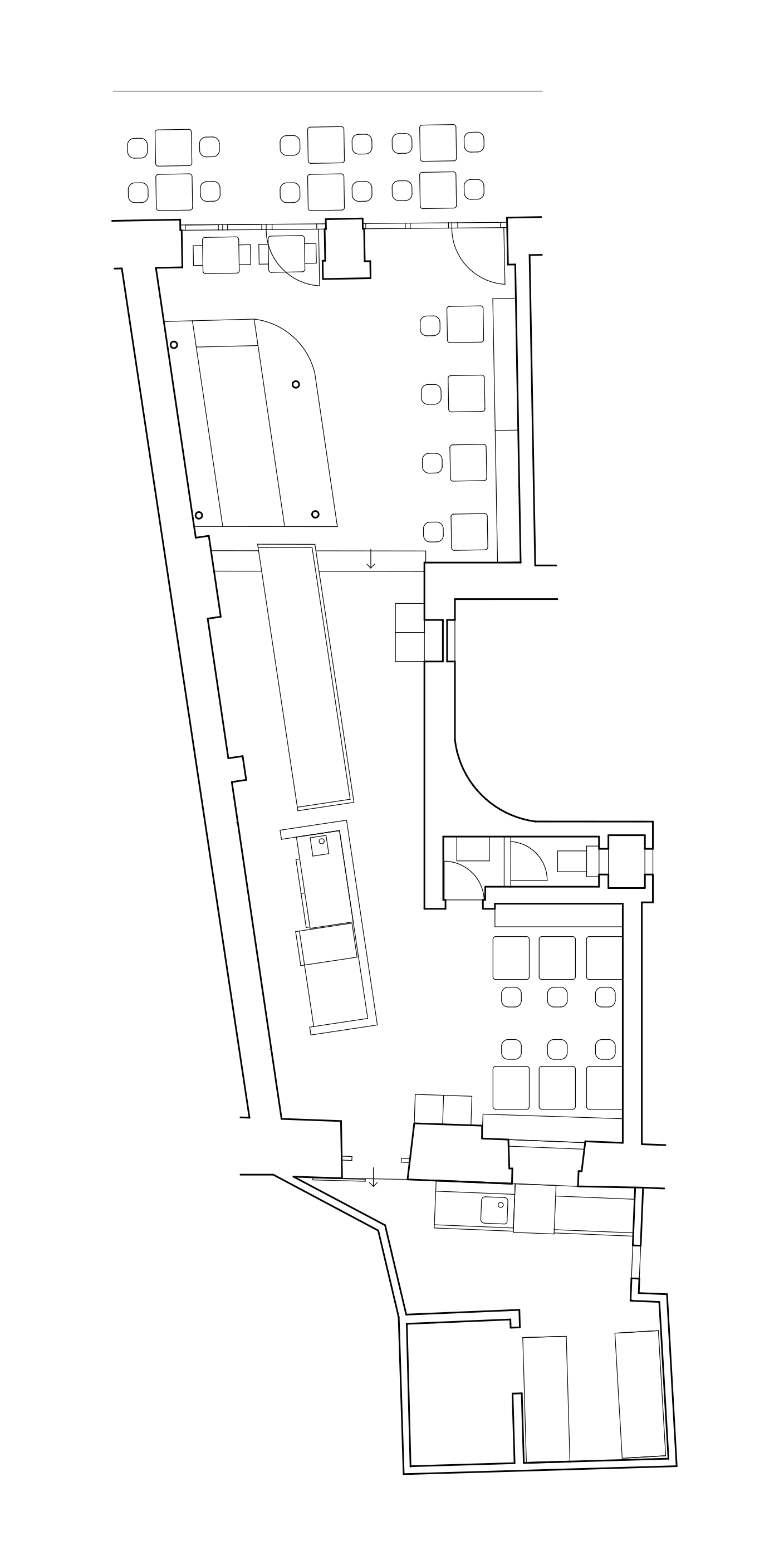
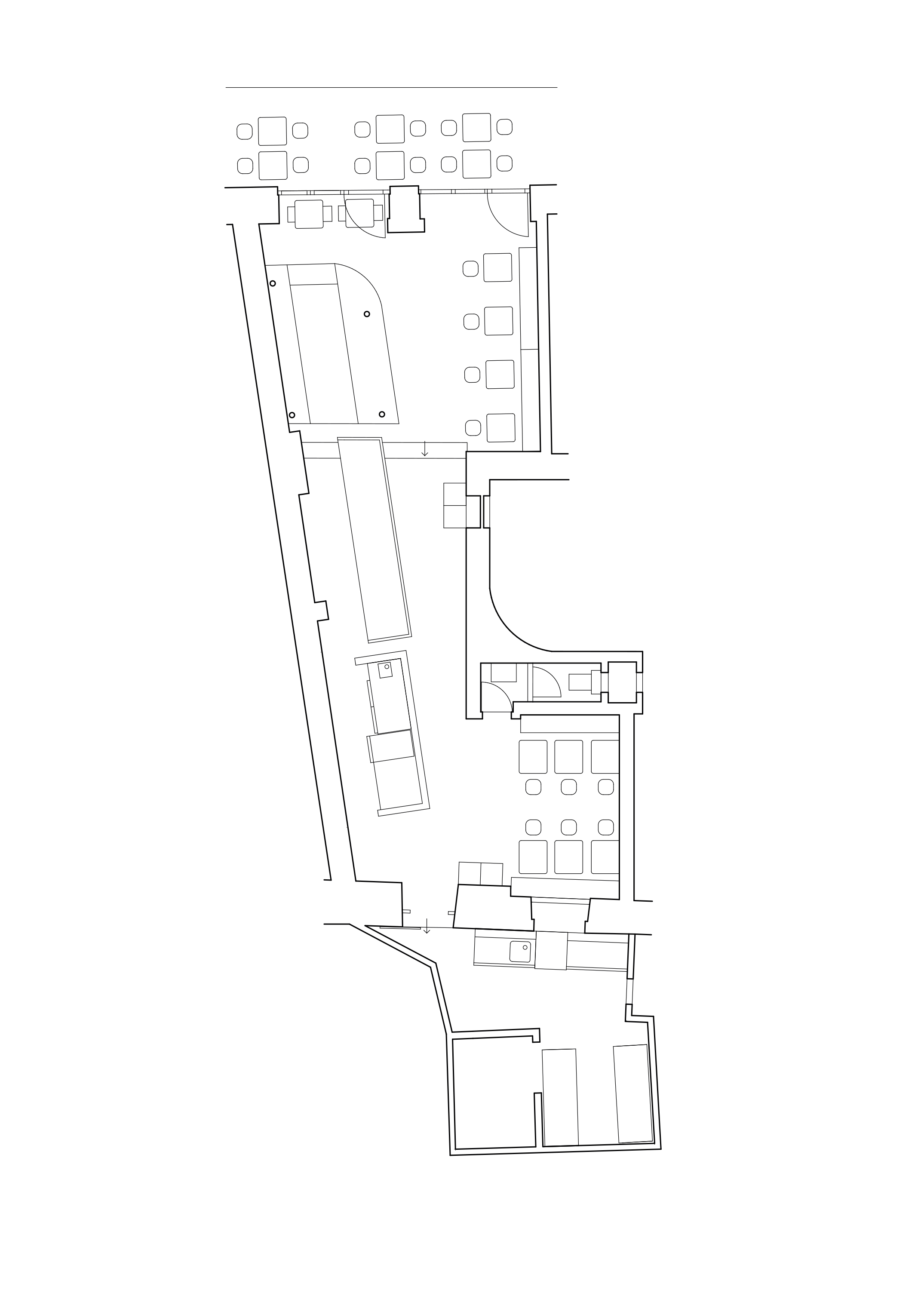
Project by Youri Kravtchenko & Marion Vergne | Construction management by Marion Vergne | Photo by Dylan Perrenoud | Drawings by ©HEAD - Geneva - Annie Bornet | 2022

Once upon a time, the three little pigs built three different houses. One was all lit up, the other had a big copper roof hanging over it, and the last was as colorful and pearly as a shell. When the wolf blew with all his might, he could only tear away the recycled brick benches.

The new Banh Mi restaurant specializing in Vietnamese cuisine is located in Geneva's lively Whitewater district. Like the houses of the little pigs, the interior is composed of three architectural elements reminiscent of the typical stalls that usually enliven Vietnamese street food. They work together and yet have very different, complementary but essential tasks. The space is built around brightly-colored, heterogeneous counters and materials inspired by the world of the street, with the outside invading the inside. Other elements, objects, textures and colors have been gathered or sourced to evoke, for those who push open the front door, the imagination of a trip to Asia. As for the benches, they are made of bricks in a variety of colors and patterns, a nod to Natalie du Pasquier.